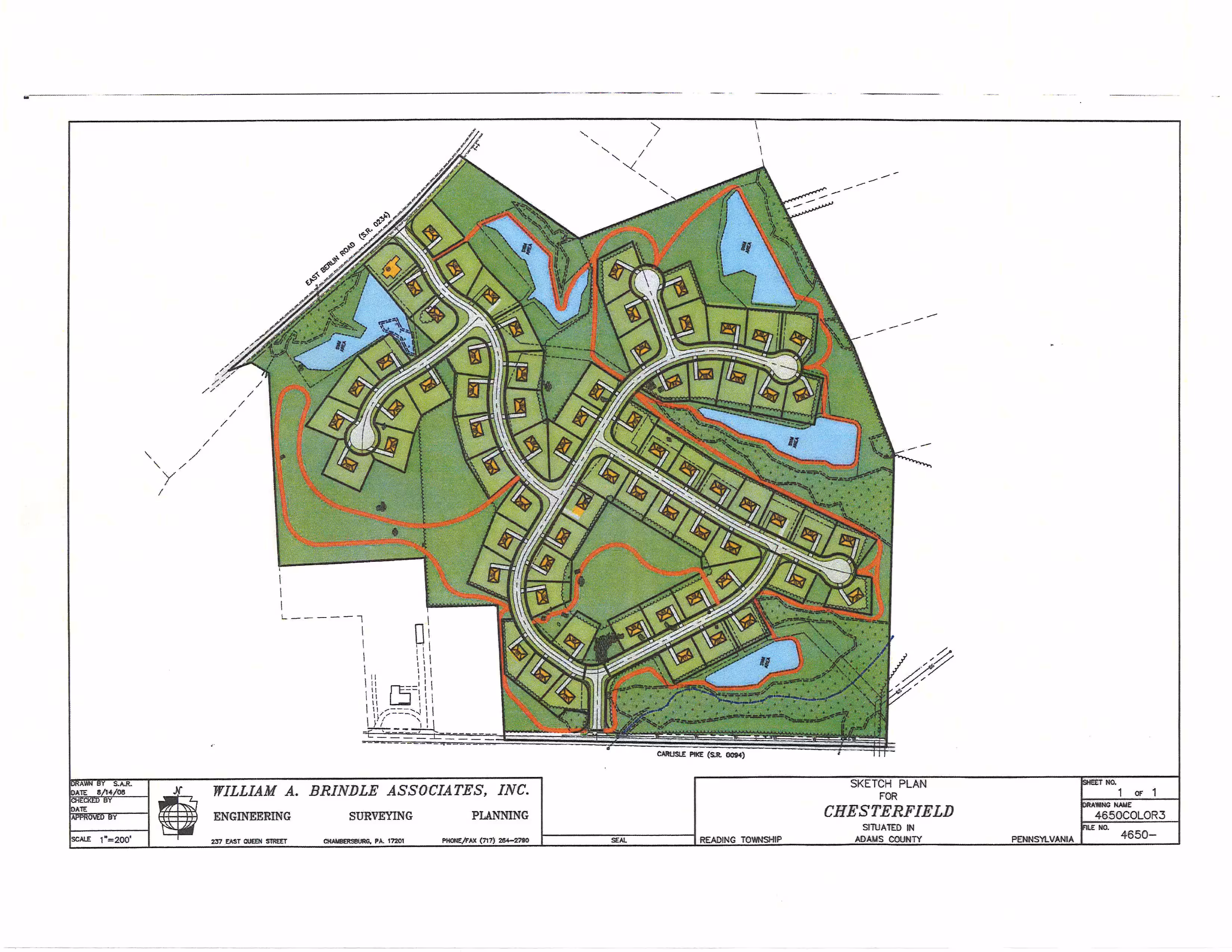
Chesterfield Residential Community

Good Hope Ventures (GHV) developed the Adams County Chesterfield residential community located off Carlisle Pike and Route 94. This future development will bring 70 single-family lots to Reading and East Berlin Township, serving as a midway point between Hanover, Gettysburg, and York—situated near Pennsylvania’s Historic South Mountain Fruit Belt, dubbed America’s Orchard.

As project lead, GHV purchased 52 acres of raw land to develop the roadway and residential lot concept plans, coordinating with township representatives for development approval. Our team works with third-party contractors to extend utilities, build roadways, and prepare lots for housing construction.